Welcome to Nerul's Most Iconic Landmark: Aura Krishna! Experience an elevated lifestyle in this stunning G + 17 floor tower, featuring meticulously designed 1 & 2 BHK residences. A home that redefines luxury, where every detail is crafted for an unparalleled ownership experience in Navi Mumbai.
? Years of Real Estate Excellence
Each project is a masterpiece, uniquely envisioned to reflect luxury, personality, and purpose.
Aura Krishna is a testament to our commitment to creating iconic spaces.
📍 Experience sophisticated living at Aura Krishna, Nerul – where elegance meets excellence.
🌟 Book your dream home today!
RERA Registration Details:
MahaRERA Reg. No.: ?
Builder Name
Aura Realtors Builders and Developer
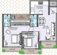
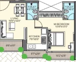
1 BHK & 2 BHK Flats in Nerul offer ample features for a high-quality life. Designed with modern architecture, these premium residences provide spacious layouts, high-end fittings, and superior construction quality. Experience elegance and comfort in every corner of your dream home in Nerul.
Storeys, G + 17 Magnificent Towers
Spacious 1 & 2 BHK Flats with the availability
Kids Play Area
Parking
Landscaped Garden
Seating Area
Discover the best 1 BHK and 2 BHK flats for sale in Nerul
| Configurations | Carpet Area | Price |
|---|---|---|
| 1 BHK | 857 sqft | 1.09 Cr |
| 2 BHK Delux | 1,311 sqft | 1.61 Cr |
Enjoy world-class amenities in Nerul's 1 BHK & 2 BHK flats, including a modern gym, landscaped gardens, and dedicated play areas. With ample parking, high-speed elevators, and 24/7 security, every aspect ensures a safe and luxurious lifestyle. Elevate your living experience in Nerul's finest new projects.
Clubhouse
Gym
Landscaped Garden
Kids Play Area and More
Strategically located, our 1 BHK and 2 BHK flats in Nerul offer seamless connectivity to Mumbai and Navi Mumbai. Close to upcoming metro stations, highways, and commercial hubs, this location ensures a high-quality life with excellent infrastructure. Invest in Nerul property rates 1 BHK and 2 BHK before prices rise.
5 min to Nerul & Seawoods Station
5 min to D-Mart & Nexus Seawoods Mall
15 min to Upcoming Navi Mumbai International Airport
Easy Access to Sion–Panvel Expressway
The property market in Mumbai and Navi Mumbai offers a wide range of options for those seeking homes in high-rise towers, catering to every budget. Whether you’re looking for pre-launch developments, under-construction projects, ready-to-move-in (RTMI) apartments, or properties nearing possession, we aim to bring you the best deals. Whether for personal use or as an investment, we provide options for 1 BHK, 2 BHK, or 3 BHK flats across Mumbai, Pune, Thane, KDMC areas, and Navi Mumbai.
Explore flats for sale in Mumbai, Pune, Thane, KDMC, and Navi Mumbai with us. Discover affordable apartments in newly launched projects or ongoing developments in Mumbai and nearby areas. You can also explore upcoming premium projects and ongoing residential offerings in Thane and other neighboring locations.
Strategically located, these projects are conveniently close to reputed schools, shopping malls, hospitals, and recreational parks. Whether you’re looking for affordable housing or luxurious properties, these developers ensure top-notch quality and premium living experiences. Explore the best in real estate and find your dream property with us today!
Searching for a 2 BHK flat near me? Our premium 2 BHK flats for sale in Nerul offer the perfect combination of luxury and affordability. Enjoy high-end features, ample space, and a well-connected location. Don't miss out on the best Nerul flats for sale 2 BHK options.
Kings Property offers 1 bhk and 2 bhk flats in Navi Mumbai & in various locations
Q: What is the pricing of Aura Krishna?
Ans: The price of Aura Krishna starts at ₹1.09 Cr Onwards.
Q: Is Aura Krishna RERA registered?
Ans: Yes, Aura Krishna is a RERA-approved project.
Q: What is the location of Aura Krishna?
Ans:Aura Krishna is located at Nerul, Navi Mumbai.
Q: What type of room configurations are available in the project?
Ans: Aura Krishna offers Shops and 1 & 2 BHK configurations.
Q: Why choose Kings Property for Property Buying?
Ans: The property market of Mumbai & Navi Mumbai offers properties for sale in new residential projects in all budgets, whether Pre-Launch Projects, Under Construction, or Ready to Move In (RTMI).
With Kings Property, you get access to the best offers on 1 BHK, 2 BHK, and 3 BHK flats in Mumbai, Pune, Thane, and Navi Mumbai.
Explore affordable apartments or luxurious options with modern amenities like car parking, children's play areas, and swimming pools.
Properties are located close to top schools, malls, hospitals, and parks, ensuring a convenient lifestyle for buyers.